Pressemitteilungen
LR Mussner: "Umfahrung von Zwischenwasser weiterer wichtiger Schritt im Gadertal"
(LPA) Die Bevölkerung von Zwischenwasser kann aufatmen. Mit dem Beschluss der Landesregierung vom Montag ist der Grundstein für die Realisierung der Umfahrung des Ortes gelegt worden. Bautenlandesrat Florian Mussner erklärt die Details.

Erster Schritt hin zur Verwirklichung der Umfahrung war eine Machbarkeitsstudie, an deren Ende zwei Varianten zur Auswahl standen. "Wir haben beide Varianten der Gemeinde Enneberg vorgelegt und sie mit den Gemeindevertretern diskutiert", erklärt der Bautenlandesrat. Bei dieser Diskussion habe sich die Gemeinde ebenso wie die Tourismusorganisationen und die Bevölkerung eindeutig für die Trasse ausgesprochen, die dann auch von der Landesregierung genehmigt worden ist. "Wir mussten nur noch einige kleinere Änderungen anbringen, um den Vorgaben der Wildbachverbauung gerecht werden zu können", so Mussner.
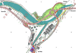
Die nun genehmigte, insgesamt 730 Meter lange Trasse der Umfahrungsstraße von Zwischenwasser folgt zwischen dem Ort und Welschellen so weit wie möglich der bestehenden. "Dies bringt den Vorteil mit sich, dass wir Grund sparen können, der hier dringend für die Erweiterung der Gewerbezone gebraucht wird", erklärt der Bautenlandesrat. Entstehen wird demnach eine Umfahrungsstraße mit insgesamt drei Brücken und einem Kreisverkehr. Letzterer wird einen Durchmesser von 38 Meter haben und auf der orographisch linken Seite der Gader entstehen. Das Material, das für die notwendige Aufschüttung gebraucht wird, stammt von der Baustelle "Punt de Fêr" und wird damit wiederverwertet. "Mit den notwendigen Arbeiten zur Verlagerung des Materials werden wir schon im Frühjahr beginnen", so Landesrat Mussner.
Zwei jeweils 50 bzw. 57 Meter lange Brücken verbinden die Umfahrungsstraße mit St. Vigil/Enneberg sowie mit Hochabtei, eine dritte sorgt für die Anbindung an die neue Gadertaler Straße. Letztere wird 55 Meter überspannen. Nach Welschellen wird man dagegen auch weiterhin auf der bestehenden Straße gelangen.
chr


